3 bedroom
1 bathroom
1 reception
3 bedroom
1 bathroom
1 reception
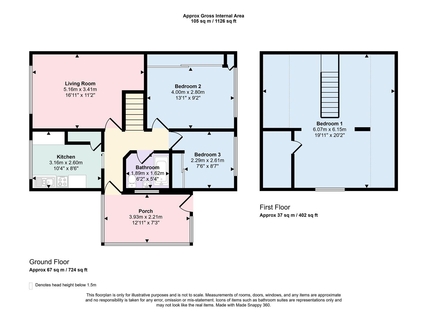
GROUND FLOOR
Porch3.94m x 2.21m (12'11" x 7'3")With uPVC double glazed windows and door, laminate flooring and a central heating radiator.
Living Room5.16m x 3.40m (16'11" x 11'2")With a uPVC double glazed window and a central heating radiator.
Bedroom 23.99m x 2.79m (13'1" x 9'2")With a uPVC double glazed window and a central heating radiator.
Bedroom 32.29m x 2.62m (7'6" x 8'7")With a uPVC double glazed window and a central heating radiator.
Kitchen3.15m x 2.59m (10'4" x 8'6")A range of wall and base units, stainless steel sink, plumbing for a washing machine, gas cooker point, central heating radiator and a uPVC double glazed window.
Bathroom1.88m x 1.63m (6'2" x 5'4")With a three-piece suite comprising of a bath with shower over, pedestal hand wash basin and W/C. With a chrome heated towel rail, tiled splash-backs and a uPVC double glazed window.
FIRST FLOOR
Bedroom 16.07m x 6.15m (19'11" x 20'2")The principal bedroom is generously proportioned and offers excellent versatility, lending itself to a range of potential uses. The room is filled with natural light from a uPVC double-glazed window and a Velux-style roof window. In addition, there is a separate storage room together with useful under-eaves storage.
EXTERIOROccupying a corner plot, the property benefits from generous outdoor space, with gardens extending around three sides of the home. A driveway provides off-road parking and leads to a single garage. Further practical storage is available beneath the property, where the combination boiler is also located.
OTHER INFORMATION~ Council Tax Band: C
~ Tenure: Freehold
~ Parking: Driveway leading to a single garage
~ Broadband - according to the Ofcom website there is 'Standard', 'Superfast' and 'Ultrafast' broadband available.
~ Mobile Coverage - according to the Ofcom website there is 'good' outdoor mobile coverage from at least four of the UK's leading providers.
Exterior - Front
Garden
Bedroom 1
Kitchen
Bedroom 2
Bedroom 3
Bathroom
Porch
Bedroom 1
Garden
Garden
Garden











