3 bedroom
1 bathroom
1 reception
3 bedroom
1 bathroom
1 reception
LOWER GROUND FLOOR
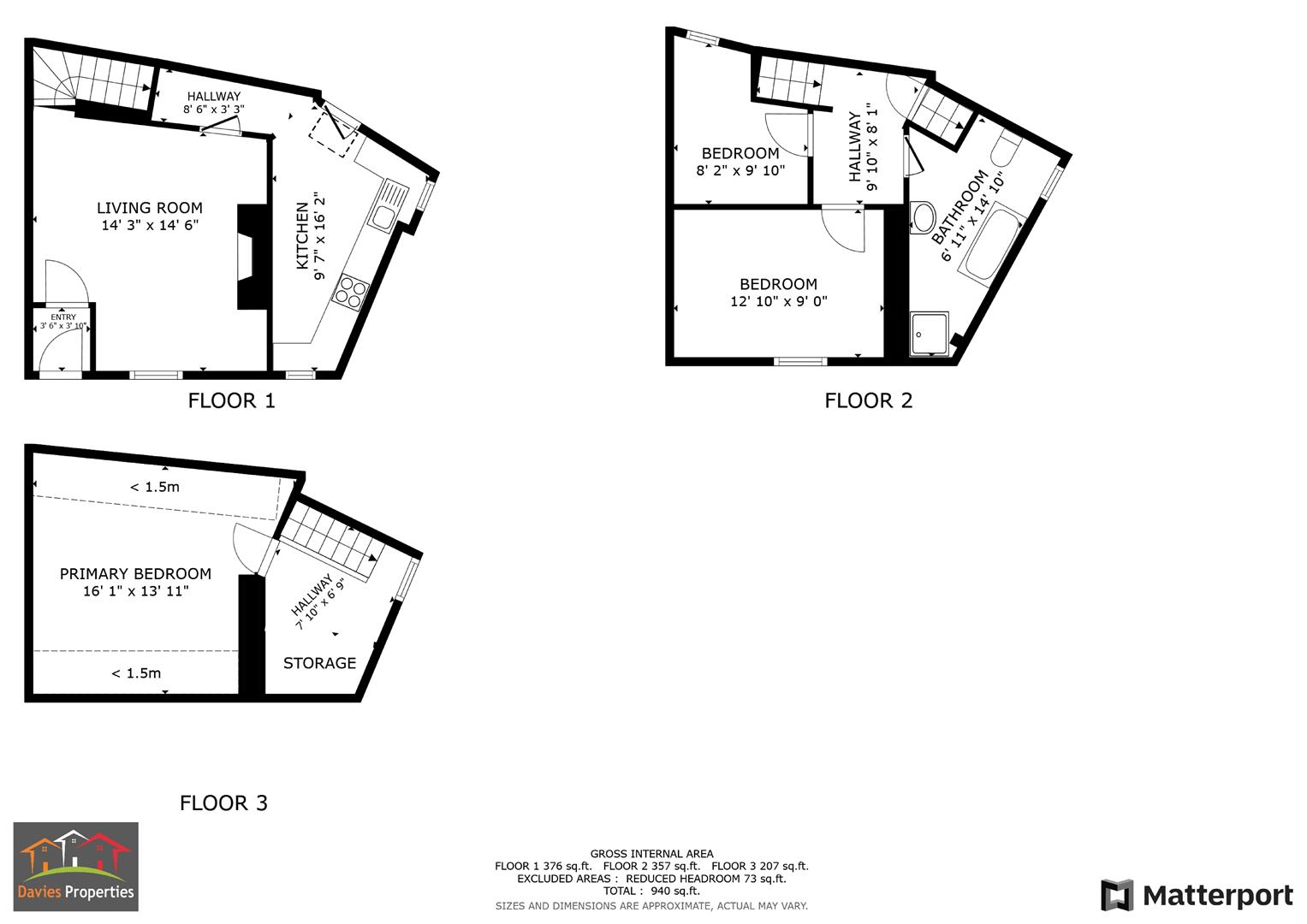
Cellar
GROUND FLOOR
Entrance Vestibule1.17m x 1.07m (3'10" x 3'6")With a uPVC double glazed entrance door.
Living Room4.34m x 4.42m (14'3" x 14'6")With a uPVC double glazed window, open fire with original feature surround and stone hearth and a central heating radiator.
Inner Hallway2.59m x 0.99m (8'6" x 3'3")A useful storage area with access to the cellar.
Kitchen2.92m x 4.93m (9'7" x 16'2")With a range of matching wall and base units with work-surfaces over, tiling to the splash-backs, laminate flooring, a central heating radiator, stainless steel sink, plumbing for a washing machine, integrated electric oven and hob with extractor hood over and two uPVC double glazed windows.
FIRST FLOOR
LandingA spacious and versatile landing.
Bedroom 23.91m 2.74m (12'10" 9'0")With a uPVC double glazed window and a central heating radiator and fitted wardrobes with sliding doors.
Bedroom 32.49m x 3.00m (8'2" x 9'10")With a uPVC double glazed window and a central heating radiator.
Bathroom2.11m x 4.52m (6'11" x 14'10")With a four-piece suite comprising of a panelled bath with shower mixer tap, W/C, pedestal hand wash basin and shower cubicle, central heating radiator and a uPVC double glazed window.
SECOND FLOOR
Storage Area2.39m x 2.06m (7'10" x 6'9")A useful and versatile storage area which can be used as an office area. With a uPVC double glazed window and exposed feature beams and wall-mounted combi-boiler.
Primary Bedroom4.90m x 4.24m (16'1" x 13'11")With exposed feature beams, skylight window and a central heating radiator
ADDITIONAL INFORMATION~ Tenure: Freehold
~ Council Tax Band: A
~ Parking: on street, no permit required
~ Broadband - according to the Ofcom website there is 'Standard', 'Superfast' and 'Ultrafast' broadband available.
~ Mobile Coverage - according to the Ofcom website there is 'good' outdoor mobile coverage from at least four of the UK's leading providers.
Exterior
Living Room
Dining Kitchen
Bedroom 2
Bedroom 3
Bedroom 1
Bathroom
Storage Area







